Thursday, February 6, 2025–4:45 p.m.
-Staff reports-

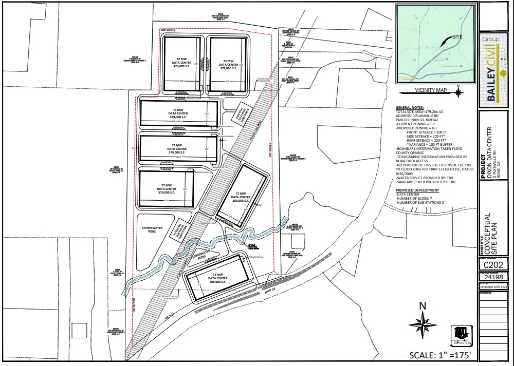
A rezoning application for a proposed data center at Highway 53 and Plainville Road across from the Lowe’s Distribution Center was withdrawn prior to Thursday’s Rome-Floyd Planning Commission meeting.
Atlas Development Inc. made the application to rezone the property from Suburban Residential to Heavy Industrial.
Plans submitted for the Dixon Data Center included more than 2 million square feet over 178 acres with high-security server buildings with advanced climate control, operational support facilities, an electrical substation and other utility infrastructure, and on-site water cooling systems.
According to Planning Director Brice Wood, the attorney for the applicant contacted him earlier in the day, asking for the withdrawal.
“If they decide to re-apply, another legal ad will be published, more letters will go out to adjacent property owners and more signs will go out on the property,” Wood told the planning commission.
The data center rezoning was one of two applications withdrawn before Thursday’s meeting, the other being a special use permit for a Christian retreat on Smith Road. As with the first withdrawal, if the applicant decides to apply again, it will be advertised again with more letters will go out to adjacent property owners and more signs will go out on the property.
The planning commission did vote to approve a special use permit for equipment sales at 4065 Martha Berry Highway.
The Floyd County Commission will conduct a public hearing for all three applications on February 25.
Meanwhile, the Rome City Commission will conduct public hearings on February 24 for an application to rezone property on Garden Lakes Parkway from Multi-Family Residential to Suburban Residential and a special use permit for a duplex at 704 East 17th Street.
The planning commission is recommending approval of both.


